7 900 000 Р 97 190 $ или 83 870

Информация о коттедже

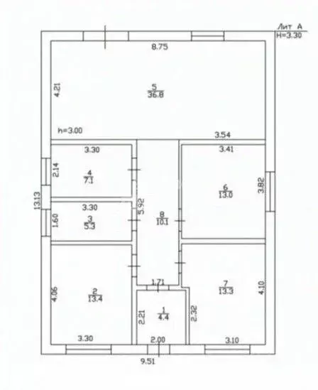
135 м2
Площадь
1
Этажность
5 cоток
Участок

Дополнительная информация

Дом продаётся вместе с участком
есть
Развернуть
Агент
+7 (989) 232-38-59
Начать чат с агентом

Дом в Краснодарский край, Динской район, Нововеличковское с/пос, ...

Арт.Дом расположен в коттеджном посёлке - это комплекс домов и земельных участков с с современной архитектурой в экологически чистом месте.Главная особенность проекта - это загородный комфорт. Вы сможете отдыхать в спокойной обстановке на собственном участке и в любое время быстро добраться до городских заведений и магазинов.Преимущества жизни в коттеджном посёлке:Сниженые тарифы за коммунальные платежи.Сниженная плотность населения и нагрузка на инфраструктуру.Чистый воздух и проезд до города без пробок за 15-20 минут.Площадь дома 135 кв.м. + 12 кв.м. терраса; Площадь участка 5,72 соток (ИЖС); Потолки 3 метра; Свет 3 фазы 15 кВт; Водоснабжение - скважина 40-42м ( второй водоностный слой); Канализация - септик; Откатные ворота; Лента фундамента по фасадной части забора; Установлены радиаторы, электрокотел ; Ровная штукатурка по маякам, разводка по электрике и коммуникациям); Забетонирована площадка под автомобиль и отмостка; Отсыпка участкаПо всем интересующим вопросам звоните в любой день недели. Дополнительная информация по запросу.Добавьте это объявление в избранное, чтобы не потерять

Читать полностью

    Для того, чтобы купить 1-этажный коттедж по адресу: Нововеличковская, переулок Гущина, позвоните по телефону +7 (989) 232-38-59. Торопитесь! Объявление №50016512008 о продаже одноэтажного коттеджа опубликовано Вчера.

    Позвонить Написать
    7 900 000 Р97 190 $ или 83 870
    Агент
    +7 (989) 232-38-59
    Начать чат с агентом
    Похожие предложения
    Дом в Краснодарский край, Динской район, Нововеличковское с/пос, ... - Фото 1
    Дом в Краснодарский край, Динской район, Нововеличковское с/пос, ... - Фото 2
    2 этажа, общая площадь 150м², участок 6 соток

    Продается частный 2-х этажный дом Общая площадь дома 150,6 м2, расположен дом на участке 6 соток, что позволяет разместить на участке, все необходимое для жизни. Дом, идеально подходит для комфортной жизни вашей семьи На первом этаже расположена...
    • 2 эт.
    • 150 м²
    • 6 сот.
    8 000 000 Р
    Агент
    +7 (988) Показать номер
    Посмотреть контакты
    Дом в Нововеличковская, Пролетарская улица, 101/2 (150.6 м) - Фото 1
    Дом в Нововеличковская, Пролетарская улица, 101/2 (150.6 м) - Фото 2
    2 этажа, общая площадь 150м², участок 6 соток

    Арт.Продается частный 2-х этажный дом Общая площадь дома 150,6 м2, расположен дом на участке 6 соток, что позволяет разместить на участке, все необходимое для жизни. Прекрасный 2-х этажный частный дом, идеально подходящий для комфортной жизни вашей...
    • 2 эт.
    • 150 м²
    • 6 сот.
    8 000 000 Р
    Агент
    +7 (918) Показать номер
    Посмотреть контакты
    Дом в Краснодарский край, Динской район, с. Красносельское, Молодежный ... - Фото 1
    Дом в Краснодарский край, Динской район, с. Красносельское, Молодежный ... - Фото 2
    1 этаж, общая площадь 103м², участок 4 сотки

    Арт.РЕАЛЬНЫЙ ОБЪЕКТ ОТ СОБСТВЕННИКА БЕЗ КОМИССИИ ДЛЯ ПОКУПАТЕЛЯ При покупке недвижимости, дарим сертификат на ремонт Продам дом в ст. Красносельское, Динской районОтличная локация: большая придомовая территория, вечернее освещение улиц, удобный подъезд.Общая...
    • 1 эт.
    • 103 м²
    • 4 сот.
    7 990 000 Р
    Агент
    +7 (989) Показать номер
    Посмотреть контакты
    Дом в Краснодарский край, Динской район, Новотитаровская ст-ца ... - Фото 1
    Дом в Краснодарский край, Динской район, Новотитаровская ст-ца ... - Фото 2
    1 этаж, общая площадь 110м², участок 4 сотки

    Объект 1546. Продается: дом 2024 года постройки 108 м2 , на участке 4.0 сотки.Планировка: Дом построен из кирпича, 3 комнаты, большая кухня-гостинная гостинная с выходом на террасу , строительство выполнено из качественных строительных материалов.Коммуникации:...
    • 1 эт.
    • 110 м²
    • 4 сот.
    8 000 000 Р
    Агент
    +7 (989) Показать номер
    Посмотреть контакты
    Дом в Краснодарский край, Динской район, Новотитаровская ст-ца ул. ... - Фото 1
    Дом в Краснодарский край, Динской район, Новотитаровская ст-ца ул. ... - Фото 2
    1 этаж, общая площадь 102м², участок 4 сотки

    Объект 1550. Продаю: Дом в ст. Новотитаровская Краснодарского края. Общая площадь 102 кв.м. на 4 сот.Планировка: В доме 3 спальни, гостиная и кухня с выходом на террасу, санузел.Коммуникации: Свет 15 кВт, скважина 60м, канализация септик, газ в 24ом году.Земельный...
    • 1 эт.
    • 102 м²
    • 4 сот.
    7 850 000 Р
    Агент
    +7 (989) Показать номер
    Посмотреть контакты

    Не нашли подходящего объявления?

    Оставьте заявку, и наши риэлторы подберут купить дом в районе Нововеличковской

    (0)