Реализация объекта недвижимости приостановлена

Информация об помещении

1
Этаж

Состояние и оснащение

Количество этажей
1
Развернуть

Помещение свободного назначения в Краснодарский край, Белореченский ...

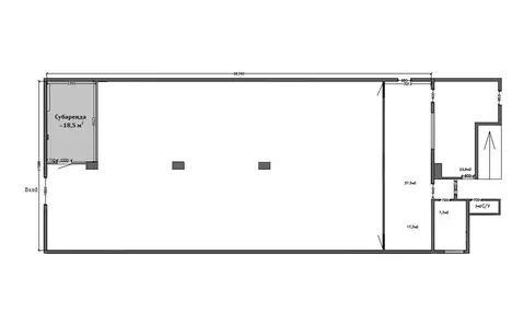
Сбер А предлагает к аренде нежилое помещение площадью 76,98 кв.м. расположенных по адресу: Краснодарский край, Белореченский район, с. Новоалексеевское, ул. Центральная, д. 11.Аренда посредством проведения торгов на электронной площадке Сбербанк-АСТ.Номер процедуры: SBRСобственник: Юго-Западный Банк ПАО СбербанкО лоте: Нежилое помещение общей площадью 76.98 кв. мЭтаж: 1/1Кадастровый номер: 23:39:0403001:714Срок аренды: не более 5 лет Особые условия: Помимо арендной платы Арендатор уплачивает переменную арендную плату в месяц в размере 3 564,убля, кроме того НДС (20 ) 712,, всего с учетом НДС 4 277,;Коммунальные расходы подлежат возмещению Арендатором и оплачиваются на основании приборов учета, в случае отсутствия узлов (приборов) учета - отношения площади Объекта к площади всех помещений.Дополнительная информация, документы и условия реализации указаны на площадке в разделе Документы .По всем вопросам, связанным с лотом, обращайтесь в рабочее время по телефону с 09: 00 до 18: 00 по МСК.

Читать полностью

    Реализация объекта недвижимости приостановлена

    Не нашли подходящего объявления?

    Оставьте заявку, и наши риэлторы подберут псн в районе Новоалексеевского

    (0)