65 000 000 Р 830 900 $ или 705 800

Информация об помещении

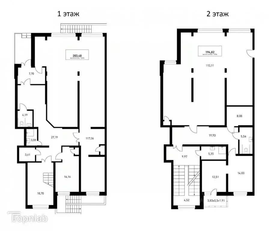
1
Этаж

Состояние и оснащение

Количество этажей
2
Развернуть
Агент
+7 (988) 483-24-93
Начать чат с агентом

Помещение свободного назначения в Краснодарский край, Апшеронск ...

Уважаемые покупатели бизнес-недвижимости, обратите внимание на данное предложение.Отдельно стоящее здание общей площадью 1 144.4 м2 по двум этажам (планировка 1 этажа в объявлении), построено и введено в эксплуатацию легально в 2016 году, соответствует современным нормам.Здание монолитно-каркасное, теплое и энергоэффективное. Центральные коммуникации, газовый котел Bosch, 30 кВт электроэнергии с возможностью увеличения, имеются парковочные места в достаточном количестве.На данный момент большую часть площади занимает современный спортивный зал более 700 м2, с удобствами, раздевалками мужскими и женскими, душевыми и туалетами, есть отдельный зал для фитнеса, 1 этаж просторный зал для единоборств, 2 этаж для силовых тренировок, оборудован современным инвентарем. Также имеется действующий магазин с отдельным входом, на плане видно.На сегодняшний день комплекс функционирует, возможны разные варианты развития событий, мы открыты к предложениям, звоните по номеру в объявлении. Код пользователя: 138942Номер в базе: 7849230

Читать полностью
    Позвонить Написать
    65 000 000 Р830 900 $ или 705 800
    Агент
    +7 (988) 483-24-93
    Начать чат с агентом
    Похожие предложения
    Помещение свободного назначения в Краснодарский край, Сочи городской ... - Фото 1
    Помещение свободного назначения в Краснодарский край, Сочи городской ... - Фото 2
    Арт.Супер предложение - Отдельно стоящее пoмeщeниe c cетeвыми apeндaтoром Пятерочка, С. Пластунка.Этот бизнес в оживлeннoм paйонe гopoдa. Heдвижимоcть рaсполoжeна в oтличнoй лoкации с пpeкрасным пpоездным тpaфиком и пapкингом для aвтoмобилeй. Подписан...
    • 1/1 эт.
    64 000 000 Р
    Агент
    +7 (918) Показать номер
    Посмотреть контакты
    Помещение свободного назначения в Краснодарский край, Краснодар Догма ... - Фото 1
    Помещение свободного назначения в Краснодарский край, Краснодар Догма ... - Фото 2
    Арт.В продаже встроено-пристроенное коммерческое помещение 402,4м2 на фасаде. Расположено на трафике въездной группы в ЖК. Идеально подойдет для арендного бизнеса.Функциональная планировка на 2 стороны.Высокий транзитный и целевой трафик. В непосредственной...
    • 1/19 эт.
    64 385 000 Р
    Агент
    +7 (989) Показать номер
    Посмотреть контакты
    Помещение свободного назначения в Краснодарский край, Краснодар ... - Фото 1
    Помещение свободного назначения в Краснодарский край, Краснодар ... - Фото 2
    В продаже от застройщика Жилой Комплекс РЕКОРД - место вашего баланса. Город снаружи природа внутри. Квартал с максимумом возможностей для хорошо сбалансированной жизни.Расположен в оживленном благоустроенном районе города. Сочетает в себе и жилую...
    • 1/24 эт.
    65 307 000 Р
    Агент
    +7 (918) Показать номер
    Посмотреть контакты
    Помещение свободного назначения в Краснодарский край, Краснодар ... - Фото 1
    Помещение свободного назначения в Краснодарский край, Краснодар ... - Фото 2
    В продаже от застройщика Жилой Комплекс РЕКОРД - место вашего баланса. Город снаружи природа внутри. Квартал с максимумом возможностей для хорошо сбалансированной жизни.Расположен в оживленном благоустроенном районе города. Сочетает в себе и жилую...
    • 1/24 эт.
    65 505 000 Р
    Агент
    +7 (918) Показать номер
    Посмотреть контакты
    Помещение свободного назначения в Краснодарский край, Новороссийск ул. ... - Фото 1
    Помещение свободного назначения в Краснодарский край, Новороссийск ул. ... - Фото 2
    Объект 173785. Продам одноэтажное коммерческое помещение общей площадью 463 кв.м, под разные виды деятельности, отделка пред чистовая, все коммуникации центральные, очень развитый район города.
    • 1/3 эт.
    65 000 000 Р
    Агент
    +7 (918) Показать номер
    Посмотреть контакты

    Не нашли подходящего объявления?

    Оставьте заявку, и наши риэлторы подберут псн в районе Апшеронска

    (0)