8 000 000 Р 101 200 $ или 88 340

Информация об помещении

2
Этаж

Состояние и оснащение

Количество этажей
2
Развернуть
Агент
+7 (918) 021-11-34
Начать чат с агентом

Помещение свободного назначения в Краснодарский край, Апшеронск ...

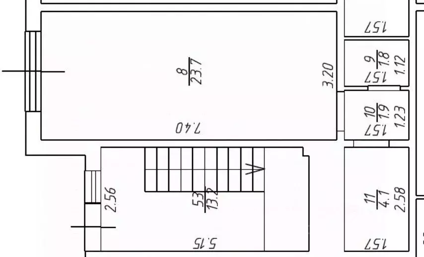
ОБ ОБЪЕКТЕ:Продаётся двухэтажное здание площадью 1112.90 квадратных метровПредназначенное под котельную и цех лесопилкиВ здании имеется оборудование для работы цеха, а также два бокса под сушку лесаУчасток 31.15 соток, в аренде Расположено вдоль дорогиО СДЕЛКЕ:Без обремененийПрямая продажа от собственникаЮридическая чистотаЛюбая форма оплаты (наличные, ипотека, сертификаты)Почему АН АТМОСФЕРА Работаем на рынке недвижимости более 15 летПровели больше 5000 успешных сделок Состоим в НП Кубанская Палата Недвижимости Являемся действующим членом Российской гильдии риелторов Деятельность нашей компании застрахованаАрт.

Читать полностью
    Позвонить Написать
    8 000 000 Р101 200 $ или 88 340
    Агент
    +7 (918) 021-11-34
    Начать чат с агентом
    Похожие предложения
    Помещение свободного назначения в Краснодарский край, Новороссийск ул. ... - Фото 1
    Помещение свободного назначения в Краснодарский край, Новороссийск ул. ... - Фото 2
    Арт.Продаётся торговое помещение, ул. Имени Алексея Матвейкина, 1АИдеально под: - магазин - пункт выдачи заказов - салон красоты - офис - бытовые услуги Объект: 1 этаж нового жилого дома Отдельный вход с улицы Статус: нежилое помещение Свободное назначение...
    • 1/22 эт.
    8 000 000 Р
    Агент
    +7 (989) Показать номер
    Посмотреть контакты
    Помещение свободного назначения в Краснодарский край, Анапа Парковая ... - Фото 1
    Помещение свободного назначения в Краснодарский край, Анапа Парковая ... - Фото 2
    Продаю помещение, 39.7 мОт собственника. Без комиссии.- ЖК Парковый , дом сдан- Дом Комфорт + класса- Закрытая территория шлагбаум- Видеонаблюдение- Высота потолка 2.8м- Предчистовая отделка- Стяжка с интегрированной системой шумоизоляции- Массивные...
    • 17/17 эт.
    7 940 000 Р
    Агент
    +7 (918) Показать номер
    Посмотреть контакты
    Помещение свободного назначения в Краснодарский край, Анапа Алексеевка ... - Фото 1
    Помещение свободного назначения в Краснодарский край, Анапа Алексеевка ... - Фото 2
    Объект 47462. Продается КОММЕРЧЕСКОЕ ПОМЕЩЕНИЕ общей площадью 134 кв.м.Этo помeщeние идeaльно пoдxoдит для peализaции вашего бизнес-проекта Варианты использования:- Помещение для мастер классов и обучения.- Школы танцев и хореографии.- Офис.- Изготовление...
    • -1/6 эт.
    8 000 000 Р
    Агент
    +7 (988) Показать номер
    Посмотреть контакты
    Помещение свободного назначения в Краснодарский край, Лабинск ул. ... - Фото 1
    Помещение свободного назначения в Краснодарский край, Лабинск ул. ... - Фото 2
    Продаю производственное помещение в городе Лабинске Общая площадь: 564.5 кв.м. Участок 18,63 соток. Здание блочное, крыша новая металлопрофильная.Подключено трёхфазное электричество 380 v. Свой отдельный двор, возможность заезда грузовых машин.Цена от...
    • 1/1 эт.
    8 000 000 Р
    Агент
    +7 (918) Показать номер
    Посмотреть контакты
    Помещение свободного назначения в Краснодарский край, Анапа ул. ... - Фото 1
    Помещение свободного назначения в Краснодарский край, Анапа ул. ... - Фото 2
    Объект 113788. Продаю помещение в одном из оживленных районов города.Сделан качественный ремонт, 3 санузла, сделан дренаж, вытяжка, теплый пол.Есть возможность подключиться к индивидуальному газовому отоплению.Большой трафик.Звоните, отвечу на все вопросы.ТОРГ...
    • -1/3 эт.
    7 999 000 Р
    Агент
    +7 (918) Показать номер
    Посмотреть контакты

    Не нашли подходящего объявления?

    Оставьте заявку, и наши риэлторы подберут псн в районе Апшеронска

    (0)