9 200 000 Р 116 200 $ или 100 200

Информация о коттедже

85 м2
Площадь
1
Этажность
7 cоток
Участок

Дополнительная информация

Дом продаётся вместе с участком
есть
Развернуть
Агент
+7 (918) 021-11-34
Начать чат с агентом

Дом в Краснодарский край, Апшеронск Оборонная ул. (85 м)

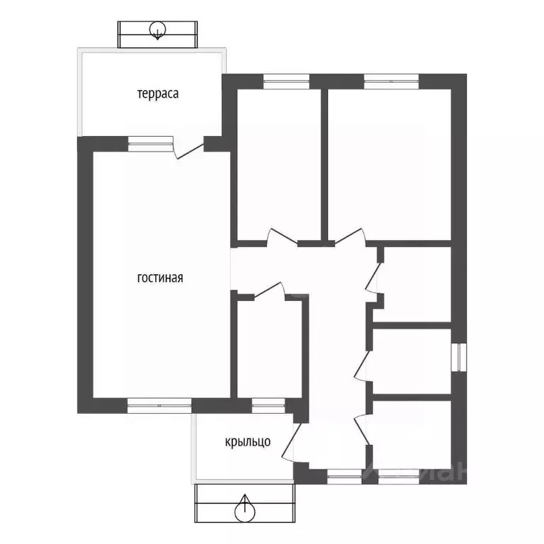
Предлагаем к покупке дом в развитом и спокойном районе г. АпшеронскаО ДОМЕ:общая площадь 85,4 кв.м на участке 7,77 сотки (ИЖС)комфортная планировка: кухня - гостиная 21,7 кв.м., с кладовой комнатой 2,3 кв.м., жилая комната 18,7 кв.м., жилая комната 11,8 кв.м., жилая комната 10,5 кв.м. прихожая 7,1 кв.м., объединённый санузел 4,2 кв.м.ремонт от застройщика: ламинат, плитка в ванной, межкомнатные двери, натяжной потолок, окна МПО.построен в 2025 году из кирпича, крыша профнастил.отопительная система теплый пол, в двух жилых комнатах радиаторы.все коммуникации центральные и имеют приборы учета.ИНФРАСТРУКТУРА:в 10 минутах Детский сад 7 и 37, Общеобразовательная школа 4 и 3, Музыкальная школа, ПВЗ популярных брендов, магазины различного сегмента и сетевые супермаркеты.до остановки общественного транспорта 5 минут пешим ходом.дом расположен на тупиковой улице - что является большим плюсом, поскольку отсутствует активное автомобильное движениеО СДЕЛКЕ: без обременений прямая продажа от собственника юридическая чистота. любая форма оплаты ( наличные, ипотека, сертификаты и т.д)Почему АН Атмосфера ?Работаем на рынке недвижимости более 15 лет.Провели больше 5000 успешных сделок.Состоим в НП Кубанская Палата Недвижимости .Являемся действующим членом Российской гильдии риелторов .Деятельность нашей компании застрахована.Пишите, звоните - расскажем все об этой недвижимости, отправим видеообзор или подберем удобное время для просмотра .Арт.

Читать полностью

    Для того, чтобы купить 1-этажный коттедж по адресу: Апшеронск, ул. Оборонная, позвоните по телефону +7 (918) 021-11-34. Торопитесь! Объявление №50016767237 о продаже одноэтажного коттеджа опубликовано 25 февраля 2026.

    Позвонить Написать
    9 200 000 Р116 200 $ или 100 200
    Агент
    +7 (918) 021-11-34
    Начать чат с агентом
    Похожие предложения
    Коттедж в Краснодарский край, Краснодар городской округ, Ленина хут. ... - Фото 1
    Коттедж в Краснодарский край, Краснодар городской округ, Ленина хут. ... - Фото 2
    1 этаж, общая площадь 82м², участок 3 сотки

    Арт.В продаже 1-этажный дуплекс ДНТ Виктория (открытая), хутор Ленина. Дом, 2018 года постройки, общей площадью 82.7 кв.м. на 3.7 сотках земли.В доме - кухня-гостиная, с выходом на террасу (18.4 кв.м.), коридор, санузел, две спальни.Высота потолков- 3...
    • 1 эт.
    • 82 м²
    • 3 сот.
    9 150 000 Р
    Агент
    +7 (918) Показать номер
    Посмотреть контакты
    Дом в Краснодарский край, Абинск ул. Красных Таманцев (82 м) - Фото 1
    Дом в Краснодарский край, Абинск ул. Красных Таманцев (82 м) - Фото 2
    1 этаж, общая площадь 81м², участок 3 сотки

    Арт.Если вам нужен новый и уже обжитой дом с тремя раздельными комнатами, с удобной просторной кухней, газифицированный, в одном из лучших районов города Абинска, максимально приближенном к центру, с чудесным видом на горы, то присмотритесь к данному...
    • 1 эт.
    • 81 м²
    • 3 сот.
    9 200 000 Р
    Агент
    +7 (918) Показать номер
    Посмотреть контакты
    Дом в Краснодарский край, Анапа муниципальный округ, с. Гай-Кодзор, ... - Фото 1
    Дом в Краснодарский край, Анапа муниципальный округ, с. Гай-Кодзор, ... - Фото 2
    1 этаж, общая площадь 87м², участок 4 сотки

    Предлагается к продаже дом 87 кв.м. в живописном пригороде Анапы и всего в 5 км от Моря.Газ Котел Вода Электричество Чистейшая вода с глубины 70м. 15кВт. Штукатурка, шпаклевка, стяжка Минимум затрат на ремонт и отделку.Участок облагорожен и разработан...
    • 1 эт.
    • 87 м²
    • 4 сот.
    9 300 000 Р
    Агент
    +7 (989) Показать номер
    Посмотреть контакты
    Дом в Краснодарский край, Анапа муниципальный округ, с. Гай-Кодзор ул. ... - Фото 1
    Дом в Краснодарский край, Анапа муниципальный округ, с. Гай-Кодзор ул. ... - Фото 2
    1 этаж, общая площадь 87м², участок 4 сотки

    Предлагается уютное шато в окружении виноградников в 5 км от моря.Шато находится в новом поселке с однотипной современной застройкой и всеми необходимыми как для постоянного проживания, так и для летнего отдыха удобствами:- короткий заезд с асфальтированной...
    • 1 эт.
    • 87 м²
    • 4 сот.
    9 300 000 Р
    Агент
    +7 (989) Показать номер
    Посмотреть контакты
    Дом в Краснодарский край, Анапа муниципальный округ, с. Гай-Кодзор ул. ... - Фото 1
    Дом в Краснодарский край, Анапа муниципальный округ, с. Гай-Кодзор ул. ... - Фото 2
    1 этаж, общая площадь 87м², участок 4 сотки

    Предлагается уютное шато в окружении виноградников в 5 км от моря.Шато находится в новом поселке с однотипной современной застройкой и всеми необходимыми как для постоянного проживания, так и для летнего отдыха удобствами:- короткий заезд с асфальтированной...
    • 1 эт.
    • 87 м²
    • 4 сот.
    9 300 000 Р
    Агент
    +7 (989) Показать номер
    Посмотреть контакты

    Не нашли подходящего объявления?

    Оставьте заявку, и наши риэлторы подберут купить дом в районе Апшеронска

    (0)