16 000 000 Р 197 100 $ или 170 100

Информация о коттедже

127 м2
Площадь
2
Этажность
3 cоток
Участок

Дополнительная информация

Дом продаётся вместе с участком
есть
Развернуть
Агент
Лещева Валерия Евгеньевна (ЭТАЖИ)
+7 (962) 823-09-65
Начать чат с агентом

Дом в Витязево, Красноармейская улица (127 м)

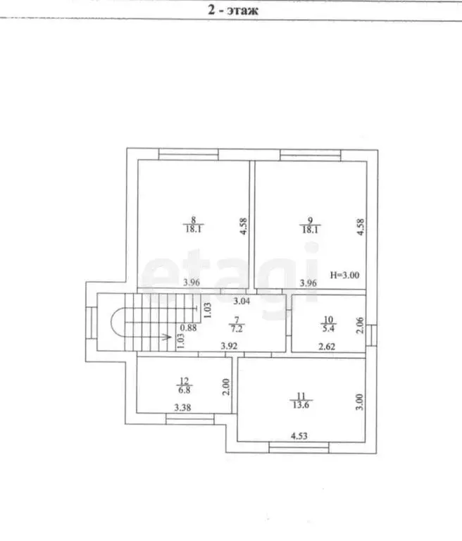
В с. Витязево продаётся новый двухэтажный дом площадью 127м2. на земельном участке 3,6 сотки. Электричество, центральное водоснабжение и центральная канализация заведены. Газ проводится по улице. На первом этаже : кухня-гостиная с выходом во двор, спальня, санузел, техническая комната, гардеробная. Второй этаж: четыре спальни, гардеробная и санузел. Электропроводка разведена, выведены точки подключения телевидения и интернета. На первом этаже теплые полы в каждой комнате, на втором - только в санузле. Радиаторы отопления установлены на втором этаже. В технической комнате установлен котел, гребенка теплых полов с насосом и водонагреватель. Двор : современный забор по всему периметру участка, ливневка. Окна - тройное остекление, энергосберегающие. Документы готовы к продаже : выписки на земельный участок и на дом, договоры на все коммуникации. Вся инфраструктура - школа, детский сад, аптеки, магазины и т.д. - с. Витязево. Код пользователя: 190956Номер в базе: 3270693

Читать полностью

    Для того, чтобы купить 2-этажный коттедж по адресу: Витязево, ул. Красноармейская, позвоните по телефону +7 (962) 823-09-65. Торопитесь! Объявление №50016448120 о продаже двухэтажного коттеджа опубликовано 07 октября 2025.

    Позвонить Написать
    16 000 000 Р197 100 $ или 170 100
    Агент
    Лещева Валерия Евгеньевна (ЭТАЖИ)
    +7 (962) 823-09-65
    Начать чат с агентом
    Похожие предложения
    1 этаж, общая площадь 89м², участок 7 соток

    Продаётся жилой дом с благоустроенным двором (участок 7 сот.)Отличный вариант как для проживания большой семьи, так и для ведения гостевого бизнеса.На участке:жилой дом - 4 комнаты + гостиная;хозблок - 6 комнат для размещения гостей. Внутри дома:Большая...
    • 1 эт.
    • 89 м²
    • 7 сот.
    15 000 000 Р
    Агент
    +7 (962) Показать номер
    Посмотреть контакты
    Дом в Краснодарский край, Анапа муниципальный округ, с. Витязево ... - Фото 1
    Дом в Краснодарский край, Анапа муниципальный округ, с. Витязево ... - Фото 2
    2 этажа, общая площадь 120м², участок 3 сотки

    Арт.Дoм плoщадью 120 м2- пpостоpнaя куxня-гocтинная 30 м2- 2 cпaльные кoмнaты- сaн узeл- кладoвaя- парковочнoe мecтo для авто под навeсомУчасток 3,3 соток. Есть возможность разместить бассейн, зоны отдыха и барбекю.До центра Анапы 15-20 мин. на авто.Все...
    • 2 эт.
    • 120 м²
    • 3 сот.
    16 600 000 Р
    Агент
    +7 (988) Показать номер
    Посмотреть контакты
    Дом в Краснодарский край, Анапа муниципальный округ, с. Витязево ... - Фото 1
    Дом в Краснодарский край, Анапа муниципальный округ, с. Витязево ... - Фото 2
    2 этажа, общая площадь 120м², участок 3 сотки

    Арт.Новый дом в престижном коттеджном поселке Новое Витязево . Дома от застройщика. Качественная постройка. Просторная кухня-гостиная, гардеробная, 2 совмещенных сан-узла. Панорамные окна.Площадь 120 м на 3.5 сотках. До поселка асфальт, в поселке бетонные...
    • 2 эт.
    • 120 м²
    • 3 сот.
    15 500 000 Р
    Агент
    +7 (989) Показать номер
    Посмотреть контакты
    Дом в Краснодарский край, Анапа муниципальный округ, с. Витязево ул. ... - Фото 1
    Дом в Краснодарский край, Анапа муниципальный округ, с. Витязево ул. ... - Фото 2
    общая площадь 196м², участок 4 сотки

    Объект 173197. Представьте себе жизнь у моря, где ваш дом это не просто место жительства, а и прибыльный бизнес Уникальное предложение для тех, кто мечтает о собственном деле и комфортной жизни в живописном месте.В продаже дом с готовым бизнесом, расположенный...
    • 196 м²
    • 4 сот.
    16 700 000 Р
    Агент
    +7 (989) Показать номер
    Посмотреть контакты
    Дом в Краснодарский край, Анапа муниципальный округ, с. Витязево ул. ... - Фото 1
    Дом в Краснодарский край, Анапа муниципальный округ, с. Витязево ул. ... - Фото 2
    общая площадь 150м², участок 4 сотки

    Объект 172793. Продаётся комфортабельный дом в Новом Витязево Это превосходное предложение для вас:— Площадь дома: 150 м.— Площадь земельного участка: 4,5 сотки.— Цена значительно ниже рыночной Преимущества дома:— Предчистовая отделка высокого качества,...
    • 150 м²
    • 4 сот.
    15 500 000 Р
    Агент
    +7 (918) Показать номер
    Посмотреть контакты

    Не нашли подходящего объявления?

    Оставьте заявку, и наши риэлторы подберут купить дом в районе Витязево

    (0)