9 300 000 Р 114 500 $ или 98 880

Информация о коттедже

114 м2
Площадь
1
Этажность
6 cоток
Участок

Дополнительная информация

Дом продаётся вместе с участком
есть
Развернуть
Агент
Курихин Дмитрий Викторович (ЭТАЖИ)
+7 (938) 557-34-77
Начать чат с агентом

Дом в Гай-Кодзор, Севастопольский проезд (114 м)

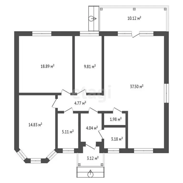
Продается компактный одноэтажный дом с тремя спальнями, просторной кухней-гостиной с выходом на террасу . Общая площадь дома 114 кв.м. Просторная кухня гостиная 37,5 кв.м., и три спальни 9,81 кв.м.,18,89 кв.м.,14,83 кв.м. Железобетонный фундамент, материал стен - газобетон. Фасад дома: облицовочный кирпич с утеплением минеральной ватой. Дом сдаётся в черновой отделке. Разводка инженерных сетей внутри дома. Электричество 15 кВт, скважина 55 метров, септик 4 кольца. Комплекс находится в Гай - Кодзоре. В шаговой доступности есть парк, магазины. Среднее расстояние до моря 8 км. Код пользователя: 190976Номер в базе: 3241213

Читать полностью

    Для того, чтобы купить 1-этажный коттедж по адресу: Гай-Кодзор, Севастопольский проезд, позвоните по телефону +7 (938) 557-34-77. Торопитесь! Объявление №50016448181 о продаже одноэтажного коттеджа опубликовано 07 октября 2025.

    Позвонить Написать
    9 300 000 Р114 500 $ или 98 880
    Агент
    Курихин Дмитрий Викторович (ЭТАЖИ)
    +7 (938) 557-34-77
    Начать чат с агентом
    Похожие предложения
    Дом в Краснодарский край, Анапа муниципальный округ, с. Гай-Кодзор ... - Фото 1
    Дом в Краснодарский край, Анапа муниципальный округ, с. Гай-Кодзор ... - Фото 2
    общая площадь 85м², участок 4 сотки

    Объект 160035. Ваша мечта о доме в 10 минутах от Анапы Продам новый кирпичный дом, построенный с душой и вниманием к каждой детали. Это не просто дом — это пространство для жизни, уюта и наслаждения природой Особенности и преимущества:Дом выполнен из...
    • 85 м²
    • 4 сот.
    9 200 000 Р
    Агент
    +7 (918) Показать номер
    Посмотреть контакты
    Дом в Краснодарский край, Анапа муниципальный округ, с. Цибанобалка  ... - Фото 1
    Дом в Краснодарский край, Анапа муниципальный округ, с. Цибанобалка  ... - Фото 2
    общая площадь 82м², участок 6 соток

    Объект 48252. Продается НОВЫЙ ДОМ в ближайшем пригороде Анапы - в с.Цибанобалка. О ДОМЕ:- Дом площадью 82 кв.м, расположен на 6 сотках земли. - В доме 3 комнаты и кухня-гостиная. - КОММУНИКАЦИИ: свет, вода, канализация. Газ проходит по границе участка....
    • 82 м²
    • 6 сот.
    9 200 000 Р
    Агент
    +7 (918) Показать номер
    Посмотреть контакты
    Дом в Краснодарский край, Анапа муниципальный округ, с. Цибанобалка ... - Фото 1
    Дом в Краснодарский край, Анапа муниципальный округ, с. Цибанобалка ... - Фото 2
    1 этаж, общая площадь 200м², участок 6 соток

    Продам дом 200 кв.м.,на земельном участке 6 соток .Снаружи облицовочный кирпич, внутри утеплитель и керамзитный блок. В доме 4 спальни, 2 санузла, большая гостиная с выходом на задний двор. Свет 15 кВт, 380 Вольт. На участке скважина с хорошей питьевой...
    • 1 эт.
    • 200 м²
    • 6 сот.
    9 300 000 Р
    Агент
    +7 (918) Показать номер
    Посмотреть контакты
    Дом в Краснодарский край, Анапа муниципальный округ, с. Сукко проезд ... - Фото 1
    Дом в Краснодарский край, Анапа муниципальный округ, с. Сукко проезд ... - Фото 2
    2 этажа, общая площадь 85м², участок 4 сотки

    Свой дом в ипотеку с господдержкой Поможем оформить семейную ипотеку под 6 одобряем 9 из 10 заявок 85 м2 комфорта для вашей семьи переезжайте и живите с удовольствием Почему этот дом ваш идеальный выбор?- Просторная планировка: - 3 отдельные спальни...
    • 2 эт.
    • 85 м²
    • 4 сот.
    9 400 000 Р
    Агент
    +7 (918) Показать номер
    Посмотреть контакты
    2 этажа, общая площадь 85м², участок 4 сотки

    Свой дом в ипотеку с господдержкой Поможем оформить семейную ипотеку под 6 одобряем 9 из 10 заявок 85 м2 комфорта для вашей семьи переезжайте и живите с удовольствием Почему этот дом ваш идеальный выбор?- Просторная планировка: - 3 отдельные спальни...
    • 2 эт.
    • 85 м²
    • 4 сот.
    9 400 000 Р
    Агент
    +7 (918) Показать номер
    Посмотреть контакты

    Не нашли подходящего объявления?

    Оставьте заявку, и наши риэлторы подберут купить дом в районе Гая-Кодзора

    (0)