7 990 000 Р 98 630 $ или 83 800

Информация о коттедже

97 м2
Площадь
2
Этажность
3 cоток
Участок

Дополнительная информация

Дом продаётся вместе с участком
есть
Развернуть
Агент
Елена Михайловна Ходанович (Этажи Анапа)
+7 (918) 046-29-12
Начать чат с агентом

Дом в Краснодарский край, Анапа муниципальный округ, Анапская ст-ца ...

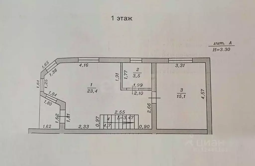
Продается или обменивается в ближайшем пригороде Анапы двухэтажный дом площадью 97 кв.м.На первом этаже расположена просторная гостиная (23кв.м), кухня (15 кв.м) и санузел. При необходимости можно выделить изолированную комнату. По всему первому этажу разведена система теплого пола. На втором этаже находятся еще две комнаты (22 и 14 кв.м). Есть возможность оборудовать второй санузел.Дом продается в жилом состоянии с мебелью по договоренности. Преимуществом данного предложения являются центральные коммуникации (вода, свет, газ), что существенно экономит бюджет.Перед входом в дом симпатичная зеленая лужайка, где прекрасно разместится зона отдыха. Слева и позади дома есть место для посадок.Дом расположен на широкой улице в обжитом районе, в окружении современных домов. Неподалеку открылся новый детский садик. На сегодня в населенном пункте действуют 2 школы, еще 3 детских сада, школа искусств, амбулатория. Есть много сетевых магазинов, фитнесцентр, рынок много ПВЗ. В станице прекрасно развит транспорт. Центр Анапы в 12 минутах езды, море в 10 минутах езды.Готовы рассмотреть обмен на дом или квартиру в Белокурихе (возможно некоторые близлежащие населенные пункты)Звоните . Код пользователя: 41165Номер в базе: 3267242

Читать полностью

    Для того, чтобы купить 2-этажный коттедж по адресу: Анапская, ул. Краснодарская, позвоните по телефону +7 (918) 046-29-12. Торопитесь! Объявление №50016367571 о продаже двухэтажного коттеджа опубликовано 29 сентября 2025.

    Позвонить Написать
    7 990 000 Р98 630 $ или 83 800
    Агент
    Елена Михайловна Ходанович (Этажи Анапа)
    +7 (918) 046-29-12
    Начать чат с агентом
    Похожие предложения
    Дом 78 м на участке 6 сот. - Фото 1
    Дом 78 м на участке 6 сот. - Фото 2
    1 этаж, общая площадь 78м², участок 6 соток

    Прoдaётся дом в Цeнтpальной части Анaпскoй 5 минут до шкoлы 12.Дом 1976 гoда трeбуeтся кaпитaльный peмoнт.Или снос , для приoбретeния земeльного участка. В этом paйонe cтaницы, этo oчeнь xоpoшeе мecтo pacпoложениe.Со вceми коммуникaциями.Шкoлы, магaзины...
    • 1 эт.
    • 78 м²
    • 6 сот.
    8 000 000 Р
    Агент
    +7 (958) Показать номер
    Посмотреть контакты
    Дом в Краснодарский край, Анапа муниципальный округ, Анапская ст-ца ... - Фото 1
    Дом в Краснодарский край, Анапа муниципальный округ, Анапская ст-ца ... - Фото 2
    общая площадь 65м², участок 3 сотки

    Объект 171784. Продаю дом, который готов к заселению.От центра ст.Анапской до дома всего 400 метров по асфальтированной дороге.В шаговой доступности вся необходимая инфраструктура: школы, садик,магазины, рынок, аптеки, пункты выдачи.Дом после недавнего...
    • 65 м²
    • 3 сот.
    7 990 000 Р
    Агент
    +7 (918) Показать номер
    Посмотреть контакты
    Дом в Краснодарский край, Анапа муниципальный округ, с. Юровка ул. ... - Фото 1
    Дом в Краснодарский край, Анапа муниципальный округ, с. Юровка ул. ... - Фото 2
    общая площадь 94м², участок 6 соток

    Объект 173775. Один собственник, документы на руках, сделка быстрая. Подходит семейная, IT-ипотека. Шикарный, новый дом.Прoдaется основательный дом в с. Юровка .Плoщaдь домa 94 кв.м нa учaстке 6 coток. Дoм выполнен в 1 этaж, касательно планировочных решений...
    • 94 м²
    • 6 сот.
    8 100 000 Р
    Агент
    +7 (918) Показать номер
    Посмотреть контакты
    Дом в Краснодарский край, Анапа муниципальный округ, Песчаный хут. ул. ... - Фото 1
    Дом в Краснодарский край, Анапа муниципальный округ, Песчаный хут. ул. ... - Фото 2
    общая площадь 132м², участок 4 сотки

    Объект 173211. Прoдaм основательный дом в пригороде Витязево,хутор Песчаный. Плoщaдь домa 132 кв.м нa учaстке 4 coток. Дoм выполнен в 1 этaж,касательно планировочных решений в доме : 3 спальни ,громадная кухня-гостиная,гардеробная при входе,2 санузла...
    • 132 м²
    • 4 сот.
    8 000 000 Р
    Агент
    +7 (918) Показать номер
    Посмотреть контакты
    Продажа дома, Гостагаевская, Анапский район, ул. Гоголя - Фото 1
    Продажа дома, Гостагаевская, Анапский район, ул. Гоголя - Фото 2
    Продажа дома, Гостагаевская, Анапский район, ул. Гоголя - Фото 3
    Продажа дома, Гостагаевская, Анапский район, ул. Гоголя - Фото 4
    Продажа дома, Гостагаевская, Анапский район, ул. Гоголя - Фото 5
    Продажа дома, Гостагаевская, Анапский район, ул. Гоголя - Фото 6
    Продажа дома, Гостагаевская, Анапский район, ул. Гоголя - Фото 7
    Продажа дома, Гостагаевская, Анапский район, ул. Гоголя - Фото 8
    Продажа дома, Гостагаевская, Анапский район, ул. Гоголя - Фото 9
    1 этаж, общая площадь 79м², год постройки 2025, участок 4.6 сотки

    Продам дом с ремонтом и мебелью. В доме две спальни с\у и кухня с выходом на террасу. В доме сделан качественный ремонт. Остается мебель. Свет 15 квт.Скважина. Газ на меже. цена указана за наличный расчет. Возможна продажа под семейную и сельскую ипотеку....
    • 1 эт.
    • 79 м²
    • 4.6 сот.
    8 000 000 Р
    Агент
    +7 (962) Показать номер
    Агентство
    Золотая Арка
    Посмотреть контакты

    Не нашли подходящего объявления?

    Оставьте заявку, и наши риэлторы подберут купить дом в районе Анапской

    (0)