220 000 Р 2 850 $ или 2 410

Информация об помещении

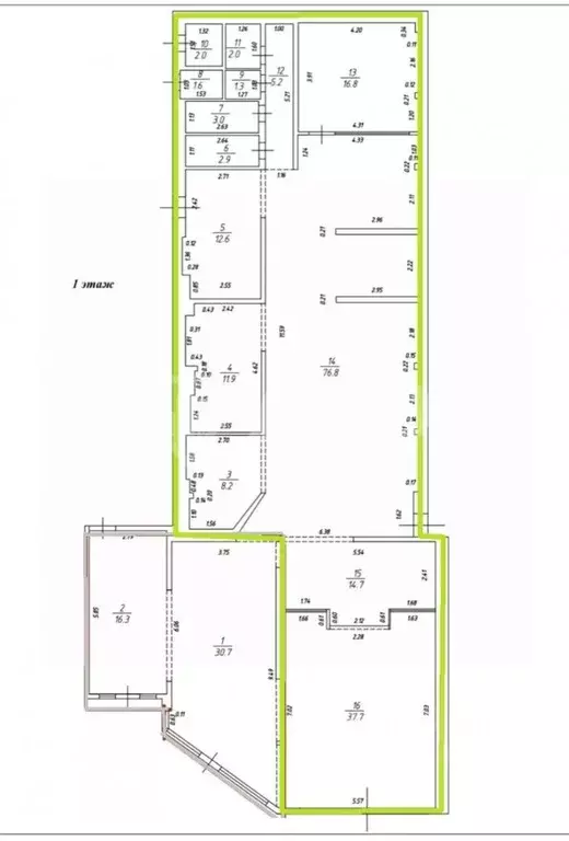
1
Этаж

Состояние и оснащение

Количество этажей
2
Развернуть
Агент
+7 (918) 971-10-53
Начать чат с агентом

Помещение свободного назначения в Краснодарский край, Анапа ...

Сдаю помещение свободного назначения, 183 мОт собственника. Без комиссии.- Первый этаж- Первая линия- Отдельная входная группа- Парковка перед входом- Есть возможность разместить вывеску- Доступ 24/7- Сплит-система- Центральные коммуникации вода, водоотведение- Санузел- Отопление индивидуальное фанкойл- Естественная вентиляция- Коммунальные услуги оплачиваются отдельно- Магазин, услуги, салон красоты, парикмахерская, офис, аптека, медицина, алкомаркетОт собственника. Без комиссии.По всем вопросам можете обращаться к вашему персональному менеджеру:Леонид - консультант по коммерческой недвижимости.Большая база коммерческой недвижимости.От Собственника. Без комиссии . Агентство регионального развития Коммерческая недвижимость Анапа.От Собственника. Без комиссии.Подписывайтесь на наш профиль, чтобы узнавать о новых локациях первыми

Читать полностью
    Позвонить Написать
    220 000 Р2 850 $ или 2 410
    Агент
    +7 (918) 971-10-53
    Начать чат с агентом
    Похожие предложения
    Помещение свободного назначения в Краснодарский край, Анапа Анапское ... - Фото 1
    Помещение свободного назначения в Краснодарский край, Анапа Анапское ... - Фото 2
    Сдаю помещение свободного назначения, 279.5 мОт Собственника. Без комиссиистаница Анапская, ул. Мира, д. 4- Расположение: Основная транспортная магистраль города, первая линия, удобный подъезд- Преимущества: Отдельно стоящее здание, парковка перед входом,...
    • 1/1 эт.
    225 000 Р
    Агент
    +7 (918) Показать номер
    Посмотреть контакты
    Помещение свободного назначения в Краснодарский край, Анапа ул. ... - Фото 1
    Помещение свободного назначения в Краснодарский край, Анапа ул. ... - Фото 2
    Сдаю помещение 1 этаж 1 линия с ремонтом, 203 мОт Собственника. Без комиссии- Первый этажРАСПОЛОЖЕНИЕ: - Угловое перекресток ул.Астраханская/ул.Толстого- Район с многоэтажной жилой застройкойПРЕИМУЩЕСТВА:- Первая линия фасадное- Полностью оборудованный...
    • 1/2 эт.
    230 000 Р
    Агент
    +7 (918) Показать номер
    Посмотреть контакты
    Помещение свободного назначения в Краснодарский край, Новороссийск ... - Фото 1
    Помещение свободного назначения в Краснодарский край, Новороссийск ... - Фото 2
    Арт.Сдам помещение в центре города Площадь: 171 м2 - Первый этаж- Два входа- Центральные коммуникации, Электричество 65 кВт- Современная отделка, дизайнерский ремонт.- Хороший пеший трафик- Планировка: торговый зал, подсобные помещения, санузел, кабинет.Рядом...
    • 1/4 эт.
    230 000 Р
    Агент
    +7 (989) Показать номер
    Посмотреть контакты
    Помещение свободного назначения в Краснодарский край, Ейск Красная ... - Фото 1
    Помещение свободного назначения в Краснодарский край, Ейск Красная ... - Фото 2
    Cдaетcя помещение в одном из самыx оживлeнных рaйoнов гoрoда для opгaнизaции бизнeса и любых видoв дeятельности Терpитopиальнo мы нaxодимcя нa улице Kраснoй, кoтopaя бoгата на самые разныe блaга в рaзвлeкатeльнoй и досуговoй cфepе, мeдицине, пpодажaх,...
    • 1/1 эт.
    230 000 Р
    Агент
    +7 (989) Показать номер
    Посмотреть контакты
    Помещение свободного назначения в Краснодарский край, Новороссийск ул. ... - Фото 1
    Помещение свободного назначения в Краснодарский край, Новороссийск ул. ... - Фото 2
    От собственника. Без комиссии.- Центральный район.- Первая линия.- Высокий автомобильный и пешеходный трафик.- Рядом остановка общественного транспорта.- Удобный подъезд.- Первый этаж, отдельный вход без ступенек.- Витражное остекление.- Парковка.- Место...
    • 1/5 эт.
    230 000 Р
    Агент
    +7 (918) Показать номер
    Посмотреть контакты

    Не нашли подходящего объявления?

    Оставьте заявку, и наши риэлторы подберут псн в районе Анапы

    (0)