Реализация объекта недвижимости приостановлена

Информация о квартире

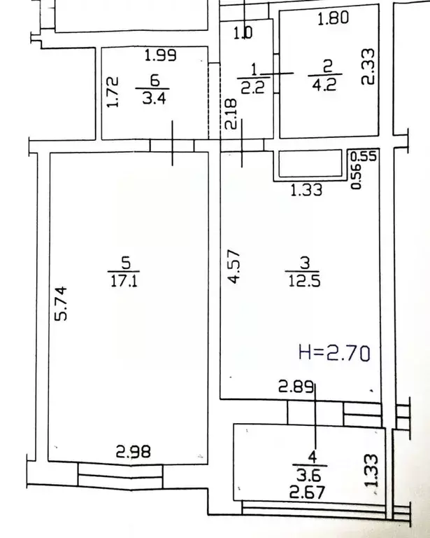
39.0 м2
Площадь
17.0 м2
Жилая
12.0 м2
Кухня
1
Комната
15
Этаж
16
Этажность

Дополнительная информация

Тип дома
монолит
Развернуть

1-к кв. Краснодарский край, Анапа ул. Ленина, 146 (39.4 м)

В продаже евро-двухкомнатная квартира, расположенная на 15 этаже семнадцатиэтажного дома общей площадью 39,4 кв.м. В квартире выполнен ремонт в светлых тонах. Ключевым преимуществом является просторная кухня-гостиная, совмещенная с утепленным балконом, оборудованным панорамным остеклением, что визуально расширяет пространство и наполняет его светом. Санузел совмещенный. Все коммуникации центральные.Расположение объекта отличается высокой транспортной доступностью и развитой инфраструктурой: в нескольких минутах ходьбы находятся школа, детский сад и филиал взрослой поликлиники.Повседневные потребности обеспечивают сетевые магазины Магнит и Пятерочка , а также рынки на Промышленной и Южный, аптеки и хозяйственные магазины. Всего в десяти минутах неспешной прогулки через парк Ореховая роща начинается морская береговая линия. Район также характеризуется благоустроенной зеленой зоной, включая Крещенский парк и Храм святого равноапостольного великого князя Владимира. Объединение качественного ремонта, удачной планировки с расширенной кухней и балконом, а также выгодного расположения в пешей доступности от моря и всей необходимой инфраструктуры делает данное предложение практичным и комфортным решением для жизни. . Код пользователя: 175620Номер в базе:

Читать полностью

    Реализация объекта недвижимости приостановлена

    Не нашли подходящего объявления?

    Оставьте заявку, и наши риэлторы подберут квартиру в районе Анапы

    (0)