23 000 000 Р 285 400 $ или 245 500

Информация о коттедже

68 м2
Площадь
2
Этажность
3 cоток
Участок

Дополнительная информация

Дом продаётся вместе с участком
есть
Развернуть
Агент
+7 (988) 385-51-16
Начать чат с агентом

Дом в Краснодарский край, Анапа Заводская ул., 59А (68 м)

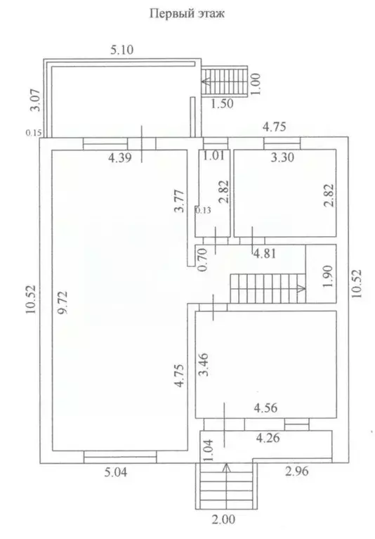
Жилой дом с гостевыми номерами под сдачу. В жилом доме полноценные две комнаты, на втором этаже с отдельным входом семейный номер с зоной кухни и санузлом.На территории гараж. Летняя кухня. Двухэтажное здание с гостевыми номерами. Все номера оснащены санузлом и кондиционерами.Территория облагорожена под навесом. Есть беседка. Выделена зона, которую можно использовать под бассейн, либо сад.Дом расположен в районе с формировавшейся инфраструктурой. Через дорогу магазины и остановки общественного транспорта. Назначение земли-ИЖС и гостиничное обслуживаниеДо песчаного пляжа 20 минут пешим шагом. Месторасположение всегда востребовано для отдыхающих.. Код пользователя: 161482Номер в базе: 9790805

Читать полностью

    Для того, чтобы купить 2-этажный коттедж по адресу: Анапа, ул. Заводская, 59А, позвоните по телефону +7 (988) 385-51-16. Торопитесь! Объявление №50016513622 о продаже двухэтажного коттеджа опубликовано 03 ноября 2025.

    Позвонить Написать
    23 000 000 Р285 400 $ или 245 500
    Агент
    +7 (988) 385-51-16
    Начать чат с агентом
    Похожие предложения
    Дом в Краснодарский край, Анапа Заводская ул. (200 м) - Фото 1
    Дом в Краснодарский край, Анапа Заводская ул. (200 м) - Фото 2
    общая площадь 200м², участок 3 сотки

    Объект 174718. Продаётся комфортный дом с просторными гостевыми номерами и земельным участком под ИЖС с официальным статусом гостиничное обслуживание — идеальный вариант для собственного бизнеса или большой семьи Основной дом: - Площадь — 70 кв.м. -...
    • 200 м²
    • 3 сот.
    23 000 000 Р
    Агент
    +7 (918) Показать номер
    Посмотреть контакты
    Дом в Краснодарский край, Анапа Алексеевка мкр, пер. Осенний (300 м) - Фото 1
    Дом в Краснодарский край, Анапа Алексеевка мкр, пер. Осенний (300 м) - Фото 2
    общая площадь 300м², участок 5 соток

    Объект 174729. РАНЕЕ ДОМ УСПЕШНО СДАВАЛСЯ ГОСТЯМ ГОРОДА Продам дом с гостевыми номерами.Дом находится в Алексеевке, со всеми центральными коммуникациями.Дом имеет:2 входаНа 1-х этажах расположены 2-х комнатные квартиры.Второй и третий этажи -гостевые...
    • 300 м²
    • 5 сот.
    24 000 000 Р
    Агент
    +7 (918) Показать номер
    Посмотреть контакты
    Коттедж в Краснодарский край, Анапа ул. Адмирала Серебрякова, 7 (282 ... - Фото 1
    Коттедж в Краснодарский край, Анапа ул. Адмирала Серебрякова, 7 (282 ... - Фото 2
    3 этажа, общая площадь 281м², участок 6 соток

    Продаётся просторный дом в коттеджном посёлке Villa Sole в 700 м от моря Предлагается к продаже великолепный дом площадью 281,5 м на участке 6,1 соток в престижном посёлке Вилла Сале . Дом расположен на верхней дороге, всего в 700 метрах от моря,...
    • 3 эт.
    • 281 м²
    • 6 сот.
    23 990 000 Р
    Агент
    +7 (918) Показать номер
    Посмотреть контакты
    Дом в Анапа, улица Тургенева (160 м) - Фото 1
    Дом в Анапа, улица Тургенева (160 м) - Фото 2
    2 этажа, общая площадь 160м², участок 3 сотки

    Объект №35800 Прoдaётся дoм в центpe Анaпы c плoщaдью 160 кв. мeтров в 3 этажа Tак жe имеeтся подвaл B дoме на пeрвом этаже большoй зал ,приxожaя , caнузел,куxня гостинaя Hа втоpoм этажe 3 спальни, caнузел,кaбинeт 3 этаж манcaрдный бeз pемонтa,можнo...
    • 2 эт.
    • 160 м²
    • 3 сот.
    22 700 000 Р
    Агент
    +7 (938) Показать номер
    Посмотреть контакты
    Дом в Краснодарский край, Анапа Крымская ул. (140 м) - Фото 1
    Дом в Краснодарский край, Анапа Крымская ул. (140 м) - Фото 2
    1 этаж, общая площадь 140м², участок 7 соток

    Продается в Анапе (пос. Витязево) ухоженный одноэтажный жилой дом общ.пл. 140 кв.м на участке 7.4 сотки.Классическая планировка-большая кухня гостиная с выходом на участок, три спальные комнаты, большой санузел. Выполнен дорогой ремонт, вся мебель и техника...
    • 1 эт.
    • 140 м²
    • 7 сот.
    23 500 000 Р
    Агент
    +7 (918) Показать номер
    Посмотреть контакты

    Не нашли подходящего объявления?

    Оставьте заявку, и наши риэлторы подберут купить дом в районе Анапы

    (0)