9 200 000 Р 121 500 $ или 101 700

Информация о коттедже

130.3 м2
Площадь
1991
Построен
2
Этажность
6.6 cоток
Участок

Состояние и оснащение

Дом
кирпичный
Год постройки
1991

Дополнительная информация

Дом продаётся вместе с участком
есть
Категория назначения землепользования
знп земли населенных пунктов
Вид разрешенного использования для участка
знп для ижс

Коммуникации

Газоснабжение
имеется
Водоснабжение
центральное
Канализация
есть
Электроснабжение
обеспечено действующим договором с электросбытовой компанией
Развернуть
Агент
Оксана Макарова
+7 (967) 310-98-91
Начать чат с агентом

Продажа дома, Абинск, Абинский район, ул. Черноморская

Продается просторный 2-этажный дом в самом центре Абинска. Идеальный вариант для большой семьи. Просторный дом 130,3 кв.м. уюта, с грамотной планировкой позволит каждому члену семьи иметь свое личное пространство, при этом оставаясь в центре событий. Удобное расположение и два входа делают этот дом особенно привлекательным.

На первом этаже располагается просторная кухня-гостиная 26,6 кв.м., где можно собираться всей семьей. Также имеется игровая комната для детей и раздельный санузел.

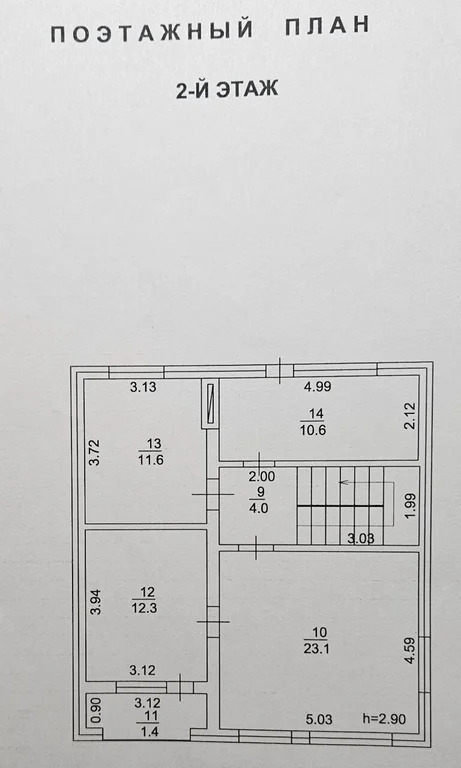
Второй этаж предлагает три изолированные комнаты и зал, идеально подходящие для комфортного проживания.

Дом с косметическим ремонтом, готов к заселению. Участок площадью 6,6 соток оборудован детской площадкой и хозяйственными постройками. Капитальный гараж и навес на 4 места, обеспечит безопасное хранение вашего автомобиля.

Документы готовы к продаже, что значительно упростит процесс оформления сделки. Звоните, чтобы договориться о просмотре в удобное для вас время и оценить все преимущества этого дома.

Не упустите возможность стать обладателем уютного дома в прекрасном месте. Этот дом - идеальный выбор для семьи, ценящей комфорт и удобство городской жизни. ID объекта: 1112047

Читать полностью

    Для того, чтобы купить 2-этажный коттедж по адресу: Абинск, ул. Черноморская, позвоните по телефону +7 (967) 310-98-91. Торопитесь! Объявление №506736030 о продаже двухэтажного коттеджа опубликовано Сегодня.

    Позвонить Написать
    9 200 000 Р121 500 $ или 101 700
    Агент
    Оксана Макарова
    +7 (967) 310-98-91
    Начать чат с агентом
    Похожие предложения
    Дом в Абинск, Черноморская улица (130.3 м) - Фото 1
    Дом в Абинск, Черноморская улица (130.3 м) - Фото 2
    2 этажа, общая площадь 130м², участок 6 соток

    Продается просторный 2-этажный дом в самом центре Абинска. Идеальный вариант для большой семьи. Просторный дом 130,3 кв.м. уюта, с грамотной планировкой позволит каждому члену семьи иметь свое личное пространство, при этом оставаясь в центре событий....
    • 2 эт.
    • 130 м²
    • 6 сот.
    9 200 000 Р
    Агент
    +7 (961) Показать номер
    Посмотреть контакты
    Продажа дома, Абинск, Абинский район, ул. Толстого - Фото 1
    Продажа дома, Абинск, Абинский район, ул. Толстого - Фото 2
    Продажа дома, Абинск, Абинский район, ул. Толстого - Фото 3
    Продажа дома, Абинск, Абинский район, ул. Толстого - Фото 4
    Продажа дома, Абинск, Абинский район, ул. Толстого - Фото 5
    Продажа дома, Абинск, Абинский район, ул. Толстого - Фото 6
    Продажа дома, Абинск, Абинский район, ул. Толстого - Фото 7
    Продажа дома, Абинск, Абинский район, ул. Толстого - Фото 8
    Продажа дома, Абинск, Абинский район, ул. Толстого - Фото 9
    Продажа дома, Абинск, Абинский район, ул. Толстого - Фото 10
    Продажа дома, Абинск, Абинский район, ул. Толстого - Фото 11
    Продажа дома, Абинск, Абинский район, ул. Толстого - Фото 12
    Продажа дома, Абинск, Абинский район, ул. Толстого - Фото 13
    Продажа дома, Абинск, Абинский район, ул. Толстого - Фото 14
    Продажа дома, Абинск, Абинский район, ул. Толстого - Фото 15
    Продажа дома, Абинск, Абинский район, ул. Толстого - Фото 16
    Продажа дома, Абинск, Абинский район, ул. Толстого - Фото 17
    Продажа дома, Абинск, Абинский район, ул. Толстого - Фото 18
    Продажа дома, Абинск, Абинский район, ул. Толстого - Фото 19
    Продажа дома, Абинск, Абинский район, ул. Толстого - Фото 20
    2 этажа, общая площадь 116м², год постройки 2008, участок 12.3 соток

    Продам двухэтажный дом 116 кв.м. в городе Абинск. В 2023 г сделан капитальный ремонт. Отделка выполнена в современном стиле с использованием качественных материалов. Дом действительно получился как новый, делали для себя, с душой и на совесть, но планы...
    • 2 эт.
    • 116 м²
    • 12.3 сот.
    • свет
    9 100 000 Р
    Агент
    +7 (967) Показать номер
    Агентство
    Эксперт
    Посмотреть контакты
    Продажа дома, Абинск, Абинский район, ул. Карла Маркса - Фото 1
    Продажа дома, Абинск, Абинский район, ул. Карла Маркса - Фото 2
    Продажа дома, Абинск, Абинский район, ул. Карла Маркса - Фото 3
    Продажа дома, Абинск, Абинский район, ул. Карла Маркса - Фото 4
    Продажа дома, Абинск, Абинский район, ул. Карла Маркса - Фото 5
    Продажа дома, Абинск, Абинский район, ул. Карла Маркса - Фото 6
    Продажа дома, Абинск, Абинский район, ул. Карла Маркса - Фото 7
    Продажа дома, Абинск, Абинский район, ул. Карла Маркса - Фото 8
    Продажа дома, Абинск, Абинский район, ул. Карла Маркса - Фото 9
    Продажа дома, Абинск, Абинский район, ул. Карла Маркса - Фото 10
    Продажа дома, Абинск, Абинский район, ул. Карла Маркса - Фото 11
    Продажа дома, Абинск, Абинский район, ул. Карла Маркса - Фото 12
    Продажа дома, Абинск, Абинский район, ул. Карла Маркса - Фото 13
    Продажа дома, Абинск, Абинский район, ул. Карла Маркса - Фото 14
    Продажа дома, Абинск, Абинский район, ул. Карла Маркса - Фото 15
    Продажа дома, Абинск, Абинский район, ул. Карла Маркса - Фото 16
    Продажа дома, Абинск, Абинский район, ул. Карла Маркса - Фото 17
    Продажа дома, Абинск, Абинский район, ул. Карла Маркса - Фото 18
    Продажа дома, Абинск, Абинский район, ул. Карла Маркса - Фото 19
    Продажа дома, Абинск, Абинский район, ул. Карла Маркса - Фото 20
    кирпичный дом, 1 этаж, общая площадь 126.8м², год постройки 2001, участок 7.7 соток

    Продам дом 126,8 кв.м. на участке 7,7 соток в центре г. Абинск. Удобное расположение не может не радовать – центральная дорога, автобусная остановка, школа №4, детские сады, магазин "Пятёрочка" и "Магнит". Вы всегда будете в центре событий. Просторный...
    • 1 эт.
    • 126.8 м²
    • 7.7 сот.
    • свет
    9 300 000 Р
    Агент
    +7 (967) Показать номер
    Агентство
    Эксперт
    Посмотреть контакты
    Продажа дома, Абинск, Абинский район, ул. Заводская - Фото 1
    Продажа дома, Абинск, Абинский район, ул. Заводская - Фото 2
    Продажа дома, Абинск, Абинский район, ул. Заводская - Фото 3
    Продажа дома, Абинск, Абинский район, ул. Заводская - Фото 4
    Продажа дома, Абинск, Абинский район, ул. Заводская - Фото 5
    Продажа дома, Абинск, Абинский район, ул. Заводская - Фото 6
    Продажа дома, Абинск, Абинский район, ул. Заводская - Фото 7
    Продажа дома, Абинск, Абинский район, ул. Заводская - Фото 8
    Продажа дома, Абинск, Абинский район, ул. Заводская - Фото 9
    Продажа дома, Абинск, Абинский район, ул. Заводская - Фото 10
    Продажа дома, Абинск, Абинский район, ул. Заводская - Фото 11
    Продажа дома, Абинск, Абинский район, ул. Заводская - Фото 12
    Продажа дома, Абинск, Абинский район, ул. Заводская - Фото 13
    Продажа дома, Абинск, Абинский район, ул. Заводская - Фото 14
    Продажа дома, Абинск, Абинский район, ул. Заводская - Фото 15
    Продажа дома, Абинск, Абинский район, ул. Заводская - Фото 16
    Продажа дома, Абинск, Абинский район, ул. Заводская - Фото 17
    Продажа дома, Абинск, Абинский район, ул. Заводская - Фото 18
    Продажа дома, Абинск, Абинский район, ул. Заводская - Фото 19
    Продажа дома, Абинск, Абинский район, ул. Заводская - Фото 20
    1 этаж, общая площадь 86.9м², год постройки 2023, участок 4.0 сотки

    Предлагаю вашему вниманию новый дом, построенный в 2023 году, в самом сердце города Абинск. Снаружи здание украшено декоративным кирпичом, а со стороны дома есть отдельный вход в котельную. Все коммуникации в доме уже проведены, отопление функционирует. Двор...
    • 1 эт.
    • 86.9 м²
    • 4.0 сот.
    • свет
    9 200 000 Р
    Агент
    +7 (967) Показать номер
    Агентство
    Эксперт
    Посмотреть контакты
    Продажа дома, Абинск, Абинский район, ул. Нефтепромысловая - Фото 1
    Продажа дома, Абинск, Абинский район, ул. Нефтепромысловая - Фото 2
    Продажа дома, Абинск, Абинский район, ул. Нефтепромысловая - Фото 3
    Продажа дома, Абинск, Абинский район, ул. Нефтепромысловая - Фото 4
    Продажа дома, Абинск, Абинский район, ул. Нефтепромысловая - Фото 5
    Продажа дома, Абинск, Абинский район, ул. Нефтепромысловая - Фото 6
    Продажа дома, Абинск, Абинский район, ул. Нефтепромысловая - Фото 7
    Продажа дома, Абинск, Абинский район, ул. Нефтепромысловая - Фото 8
    Продажа дома, Абинск, Абинский район, ул. Нефтепромысловая - Фото 9
    Продажа дома, Абинск, Абинский район, ул. Нефтепромысловая - Фото 10
    Продажа дома, Абинск, Абинский район, ул. Нефтепромысловая - Фото 11
    Продажа дома, Абинск, Абинский район, ул. Нефтепромысловая - Фото 12
    Продажа дома, Абинск, Абинский район, ул. Нефтепромысловая - Фото 13
    Продажа дома, Абинск, Абинский район, ул. Нефтепромысловая - Фото 14
    Продажа дома, Абинск, Абинский район, ул. Нефтепромысловая - Фото 15
    Продажа дома, Абинск, Абинский район, ул. Нефтепромысловая - Фото 16
    Продажа дома, Абинск, Абинский район, ул. Нефтепромысловая - Фото 17
    2 этажа, общая площадь 85м², участок 4 сотки

    Продам 2-х этажный дом в в самом центре г. Абинск. Дом 85 кв.м. Три изолированные спальни, зал, кухня,с/у совмещенный. На 2-м этаже свободная планировка (бильярдная комната), косметический ремонт. Навес. Участок 4 сотки. На участке плодовые деревья. Все...
    • 2 эт.
    • 85 м²
    • 4 сот.
    • свет
    9 100 000 Р
    Агент
    +7 (967) Показать номер
    Агентство
    Эксперт
    Посмотреть контакты

    Не нашли подходящего объявления?

    Оставьте заявку, и наши риэлторы подберут купить дом в районе Абинска

    (0)